Rubber ladder RL is a monolithic structure combining the functions of a ladder and fender in a single product. The rubber ladder RL is designed for use in port environments and combines the convenience of personnel access with protection of quay structures.
Internal steel reinforcement provides high strength and long service life. The working rubber part of the ladder serves a protective function, preventing damage to the quay during accidental contact with small vessels during mooring operations.
Advantages of rubber ladders:
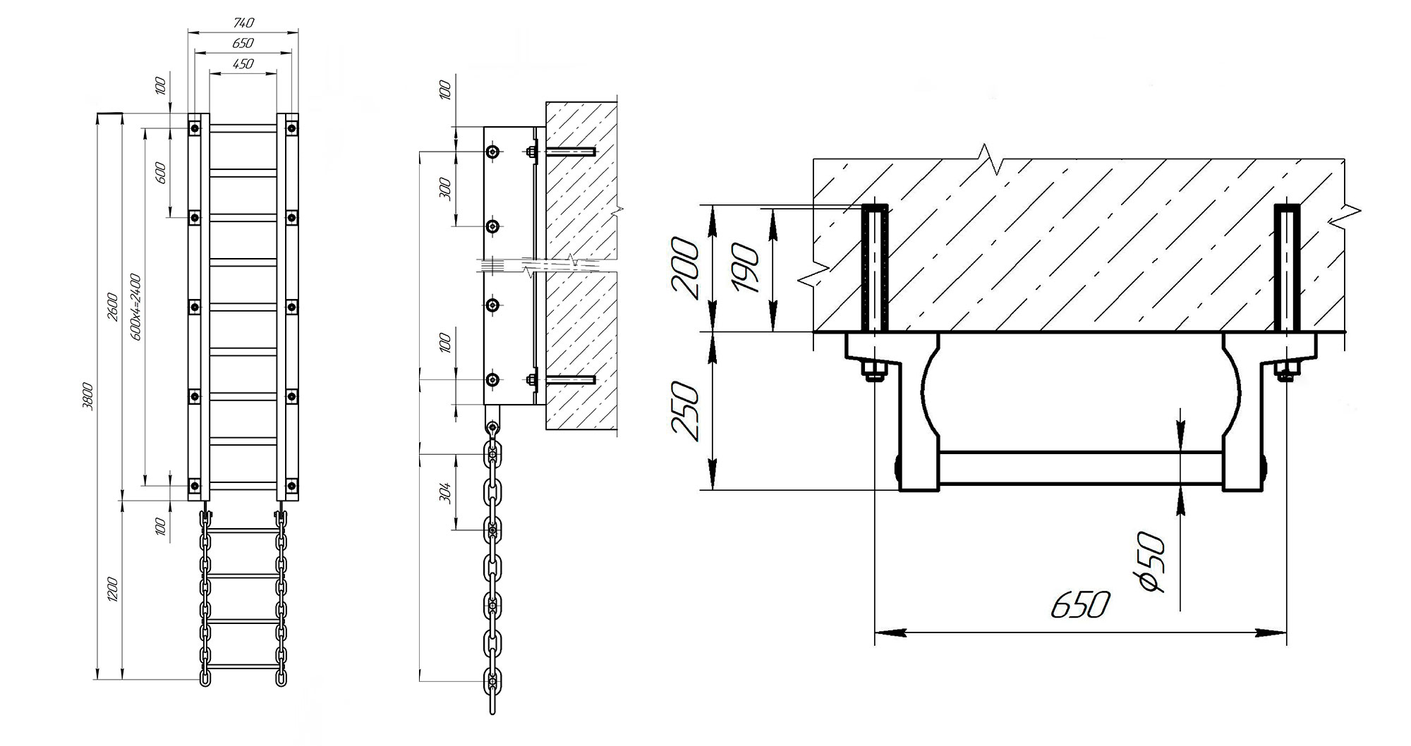
"TransTechnology" produces rubber ladders in the following sizes:
Weight: 126 kg

Weight: 200 kg
